Dec 2025
Ett stort år för Ljungs Bygg
Ljungs Bygg har under året expanderat geografiskt, stärkt sin organisation och genomfört ett stort antal projekt inom både offentlig och privat sektor. Arbetet grundar sig på tydliga rutiner, kontinuerlig förbättring och nära samarbete med kunder och systerbolag inom Rotundagruppen.
Hållbarhet har fortsatt vara en integrerad del av det dagliga arbetet för Ljungs Bygg. Material återanvändes när det var möjligt, produkter kategoriserades för framtida projekt och återvinningen följdes noggrant. Investeringar i el- och hybridfordon minskade klimatpåverkan, och arbetsmiljön stärktes genom bättre utrustning och rutiner.
”Att tala fint om hållbarhet är en sak, men vi visar mycket hellre upp det genom handling”, förklarar VD Robert Ljung.

Drömläge i Söderhamn
2025 var framför allt året då Ljungs Bygg valde att expandera verksamheten till grannkommunen Söderhamn. Kontoret i Ericssons gamla lokaler har fått nya arbetsytor, konferensrum och en komplett verkstad för service och snickeri. Här arbetar idag åtta personer, de flesta nyanställda i samband med starten.
Läget vid motorvägen och de ökande industrisatsningarna i regionen har snabbt gett ett starkt inflöde av uppdrag. Avtal med både Faxeholm och Söderhamns kommun är på plats, och samarbetet mellan kontoren i Bollnäs och Söderhamn gör organisationen flexibel.
”Med hjälp från andra bolag inom Rotundagruppen kunde teamet även klara de mest intensiva perioderna under året. Vi har nu allt på plats för att fortsätta växa”, säger Christoffer Olsson, arbetsledare på Ljungs Bygg i Söderhamn.
.png)
Årets projekt – bred kompetens i praktiken
Året som gick innehöll en ovanligt varierad projektportfölj, där Ljungs Bygg arbetade i allt från känsliga sjukhusmiljöer till fjällvärldens utmanande klimat och industrins specialiserade anläggningar. Projekt som ger en tydlig bild av företagets bredd och förmåga att anpassa sig efter helt olika typer av krav.
Finsnickeri med stor hänsyn
Ett av de mest tekniskt avancerade uppdragen var ombyggnaden av ett röntgenlabb på Bollnäs Sjukhus. Det tidigare outnyttjade rummet byggdes om från grunden, med nya blyförstärkta väggar, nya installationer och ett tak som förstärktes för att bära den tunga röntgenutrustningen. Eftersom arbetet låg intill akutmottagningen krävdes noggrann planering och särskild hänsyn till verksamheten runtom. Som projektledaren uttryckte det handlade mycket om att arbeta exakt, men samtidigt nästan osynligt.
.jpg)
Arbete från söder till norr
Under samma period färdigställdes nya fjällstugor i Åre – ett projekt som krävde både logistik och uthållighet. Här varierade förutsättningarna rejält mellan vinter och sommar, och hantverkarna arbetade med material som träspån och värmebehandlat faltak för att ge stugorna ett uttryck som både håller länge och passar in i fjällmiljön. En av stugorna anpassades dessutom för bättre tillgänglighet efter ett sent beslut, vilket ledde till snabb omprojektering. Idag står fyra moderna och hållbara stugor redo för uthyrning.

I hållbarhetens tecken
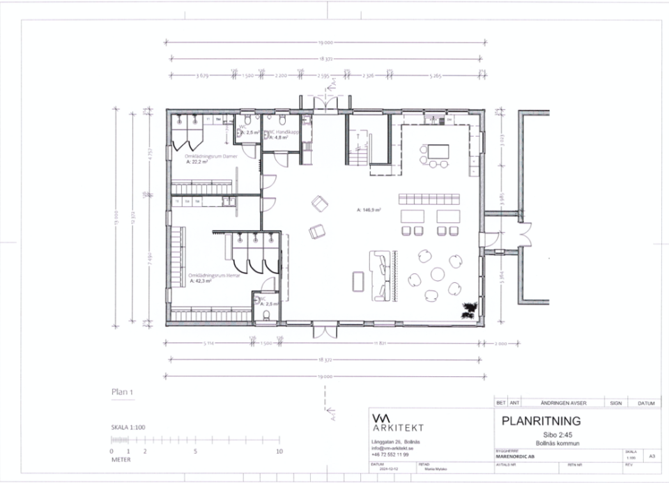
Viktiga industribolag fick också ta del av Ljungs Byggs kompetens. I Kilafors påbörjades bygget av ett helt nytt kontor åt Marenordic – ett lyft från deras tidigare barack och ett sätt att ge både medarbetare och besökare en mer representativ arbetsmiljö. Kontoret – som invigs i februari 2026 – reses i lösvirke och innehåller både kontorsytor, matsal och omklädningsrum. Det mest utmanande i projektet har varit den förorenade marken, som krävde särskild hantering innan bygget kunde fortsätta.
”Vi arbetar i samförstånd med beställaren och anpassar successivt detaljer som el, färgsättning och kökslösningar för ett riktigt snyggt slutresultat. Tack vare vår goda kommunikation och tydliga avgränsning av arbetsområden kan Marenordics verksamhet pågå som vanligt under hela projektet”, berättar Helmer Hägglund, projektledare på Ljungs Bygg

Byggprojekt för framtiden
I den offentliga sektorn renoverades bland annat Granbergs förskola, där arbetet pågick samtidigt som verksamheten. Här handlade det om att skapa bättre inomhusklimat och energieffektivitet genom nya ytskikt, ny ventilation och vattenburen värme. Med barn på området varje dag blev säkerhetsarbetet en central del av projektet, med tydliga avspärrningar och rutiner för leveranser.
Ett liknande uppdrag är fönsterbytet på Arbrå skola, där monteringen av 235 tunga fönster med hjälp av robotlyft pågår i skrivande stund. Arbetet planeras noggrant för att undervisningen ska kunna fortsätta som vanligt. Skolan kan se fram emot moderna fönster som ger bättre ljudmiljö och jämnare temperaturer året om.

”Vårt mål är alltid att leverera hög kvalitet, skapa värde för kunden och hitta hållbara lösningar som håller över tid. Sammantaget har vi haft ett väldigt bra år och framtiden för Ljungs Bygg känns mycket spännande. Våra medarbetare är vår verksamhet och vi är stolta över hur sammansvetsat vårt team är”, summerar Robert Ljung.